Tại Morehome, chúng tôi nhận được rất nhiều thư gửi về yêu cầu tư vấn xây dựng biệt thự. Có rất nhiều người thích phong cách cổ điển, sang trọng, mang vẻ đẹp châu Âu nhưng lại không biết nên xây dựng như thế nào, làm việc với công ty nào để có kết quả tốt nhất. Dưới đây chúng tôi xin được tư vấn về thiết kế biệt thự 3 tầng theo phong cách cổ điển châu Âu cho gia đình anh Lê Đức Bình tại Hà Nam.
1. Mẫu thiết kế biệt thự 3 tầng đẹp
Đây là một thiết kế biệt thự phong cách châu Âu mang nét cổ điển, bề thế, sang trọng, quyền lực. Ngoài việc tư vấn về kiến trúc, chúng tôi cũng đã tư vấn cho anh Bình những kiến thức về phong thủy để từ đó có thể áp dụng trong thiết kế biệt thự của gia đình. Kích thước từng phòng, kích thước cửa, chiều cao… đều tuân thủ theo quy luật phong thủy. Biệt thự có điểm nhấn là thiết kế mái vòm kiểu lâu đài, cổng sắt hoành tráng, hoa văn cầu kỳ rất nổi bật và ấn tượng. Biệt thự được xây dựng 3 tầng, với tổng diện tích khu đất là 15x30m. Diện tích xây dựng là 8x15m chưa bao gồm gara ô tô. Biệt thự nhà anh Đức Bình không làm tầng hầm nên gara sẽ được thiết kế riêng biệt với không gian nhà, đi từ ngoài vào có thể đi thẳng vào gara. Ngoài ra chúng tôi tư vấn cho anh phương án mở thêm cổng phụ đối diện gara để xe đi vào.
Nhằm mang đến sự khác biệt, độc đáo và sang trọng nên từng đường nét hoa văn, phào chỉ đều được thiết kế tỉ mỉ, cân đối, so sánh độ nhân, cân bằng thị giác để đảm bảo cho một tổng thể thật ấn tượng, thu hút. Trong thiết kế biệt thự 3 tầng 2 mặt tiền này thì phần rào, cổng cũng rất quan trọng nên cần sự hoành tráng, tôn lên vẻ đẹp đẳng cấp của căn biệt thự bên trong.

Tổng thể mặt trước của biệt thự.
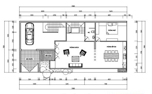
2. Bản vẽ thiết kế biệt thự 3 tầng đẹp
Công năng của thiết kế nhà biệt thự 3 tầng được bố trí như sau:
- Tầng 1 bao gồm: 1 sảnh, 1 phòng khách, 1 phòng bếp, 1 phòng ăn, 1 nhà vệ sinh.
- Tầng 2 bao gồm: 1 sảnh tầng, 1 phòng ngủ master, 2 phòng ngủ nhỏ, 1 nhà vệ sinh chung.
- Tầng 3 bao gồm: 1 sảnh tầng, 1 phòng ngủ, 1 phòng thờ, 1 phòng sách, 1 nhà vệ sinh, 1 sân chơi.
Thiết kế biệt thự 3 tầng theo phong cách châu Âu có tầng 1 được bố trí các phòng theo hầu hết những thiết kế biệt thự khác, duy có nội thất là khác biệt. Sảnh chính dẫn vào phòng khách, trong phòng khách là bộ bàn ghế bằng gỗ quý được bọc nệm hoa văn, hoa tiết chạm trổ trên gỗ rất công phu, cầu kỳ. Đèn chùm là vật dụng không thể thiếu trên trần nhà của những căn biệt thự phong cách châu Âu. Tương tự với phòng bếp, tủ bếp cũng được làm bằng gỗ với màu sắc đặc trưng, treo đèn chùm sang trọng, tạo nên một không gian nhà bếp vừa đẳng cấp lại vẫn có nét ấm áp và gần gũi. Phòng ngủ tại tầng 1 có diện tích vừa phải, ngoài ra còn có 1 nhà vệ sinh chung. Dưới đây là bản vẽ thiết kế thiết kế biệt thự 3 tầng.

Thiết kế mặt bằng tầng 1.
Tại tầng 2 bố trí 3 phòng ngủ, trong đó có 1 phòng ngủ lớn và 2 phòng ngủ nhỏ. Phòng ngủ lớn dành cho cặp vợ chồng, tuân thủ gam màu chủ đạo là trắng và cam nhạt. Để có điểm nhấn trong căn phòng này, vợ chồng anh Bình có thể dùng chăn màu đỏ, vừa nổi bật mà lại rất quý tộc. 2 phòng ngủ nhỏ dành cho con cái, có thiết kế cửa sổ để đón ánh sáng và gió, giúp không khí trong nhà thông thoáng hơn.

Phòng ngủ master tại tầng 2.
Mẫu thiết kế nhà biệt thự đẹp 3 tầng của anh Bình có một tầng 3 rất ấn tượng với sân thượng. Sân thượng là nơi thể dục cho các thành viên trong gia đình, cũng có thể là nơi tổ chức tiệc ngoài trời giúp gắn kết mọi người trong không gian thoải mái, hoặc cũng có thể làm nơi trồng hoa, trồng cây, giúp không gian có thêm màu xanh, gần gũi với thiên nhiên. Gian thờ ở nơi cao nhất và nhiều ánh sáng nhất, trang nghiêm và yên tĩnh. Phòng ngủ nhỏ tại tầng 3 là phòng ngủ dành cho khách tới chơi nhà. Phần mái vòm đặc trưng được đổ bê tông và lợp mái rất cầu kỳ, đặc biệt nổi bật trong cả một khu.
3. Mẫu thiết kế 3 tầng 2 mặt tiền đẹp
Có thể nói việc lựa chọn gam màu sẽ mang đến cho thiết kế biệt thự 3 tầng đẹp một điểm nhấn hết sức tinh tế. Lấy màu chủ đạo là cam và trắng, căn biệt thự trông như những tòa lâu đài cổ kính đầy sang trọng, quyền uy mà lại rất hài hòa với không gian xung quanh. Không những vậy, hệ thống cửa sổ và cửa chính được làm bằng gỗ quý có chi tiết kim loại đã làm nên một kiến trúc đồ sộ, đẳng cấp; đây cũng là những vật liệu có sức bền với không gian và thời gian, tạo nên một cảm giác an toàn, vững chãi.
Biệt thự của anh Bình có 2 mặt tiền, vì vậy trong thiết kế chung sẽ có 2 sảnh dẫn vào từ cả cổng chính và cổng phụ. Đây là một vị trí đẹp nhất trong khu đô thị tại Hà Nam.

Mặt tiền chính của biệt thự.
Nếu bạn có nhu cầu tư vấn thiết kế biệt thự, thi công biệt thự hãy liên hệ với đội ngũ kiến trúc sư tâm huyết và kinh nghiệm tại Morehome theo số 097 543 8686 hoặc qua email [email protected].